• Бул. Бъкстон
  • алпийски методи
  • Бул Бъкстон
  • Institute for Vertical Access operatioNs

About This Project

compInstitute

PresentationDubaiTVDuring Dubai Helishow 2014, Ivan Krist0ff presented his plans to create Institute for Vertical Access Operations/I.V.A.N. in Bulgaria and develop campuses around the world, where there are highrise buildings. The project is to build a multi disciplinary center for vertical and aerial rope access in his own property at  44 Br. Buxton Blvd., Sofia, Bulgaria. By 2016 he will complete the Mountain Training Base with its own Mission Control and Air Traffic Control Tower near a local airfield. The base will be just 50km away from the Institute and that is where most of the off-road emergency response, rock climbing and Hign Angle rope rescue training will take place. The place will be just 30 minutes away by air from the near 3000 meter peaks and high mountain lakes, where Sea-Airl-Land rescuers can be train in heli water rescue.

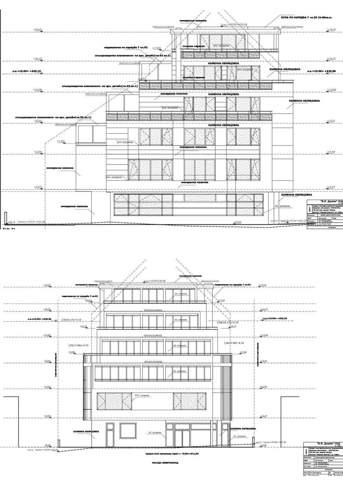
Институт за вертикално и авио обучение/ И.В.А.Н.
Местонахождение: Бул. Братя Бъкстон № 44/42
Година на завършване: 2020
Строителен проект: Мулти-дисциплинарен център за обучение на техници по височинно въжени и въздушно въжени операции
Снимки: Иван Кристоф

Новият мулти-дисциплинарен център трябва да обедини всичко от областа на вертикалните и въздушни операции: да бъде създадена среда, в която теорията и практиката да се срещат в един голям форум, който да привлече специалисти в област от целия свят. Предвидения за строителство парцел е в близост до минерален извор и предстоящ ВИП комплекс за живеене с термо спа центрове и конферентни зали. Центъра за професионално обучение ще подслонява млади хора от различни държави и разполага с зона за отдих.

Основната цел на поръчката е да се създаде разнообразна обкръжаваща среда, която в същото време да накарва временно пребиваващите да се чувстват като у дома си. Разработения от архитект Чавдар Георгиев и  Иван Кристоф проект е предназначен целогодишен отдих на партньори. Основната задача бе да се проектира тренировъчна база за доброволци спасители и екстремни спортисти. От самото начало намерението на проектантите е било да се създадат помещения, които лесно да се променят и преустройват в зависимост от развитието на новите технологии за модерни обучения.

За повече информация:
Institute for Vertical Access operatioNs